campolide

A compact 1950s apartment in Lisbon was transformed into a contemporary home that embraces openness, natural light, and the preservation of its original character

Located in Campolide, a rapidly evolving neighborhood west of Lisbon’s historic center, the apartment sits within an urban context traditionally shaped by workers’ housing and small craft workshops. Today, the area attracts a younger and more diverse population due to its central location, strong transport connections, and proximity to Monsanto Park, the Tagus River, and the Atlantic coast.

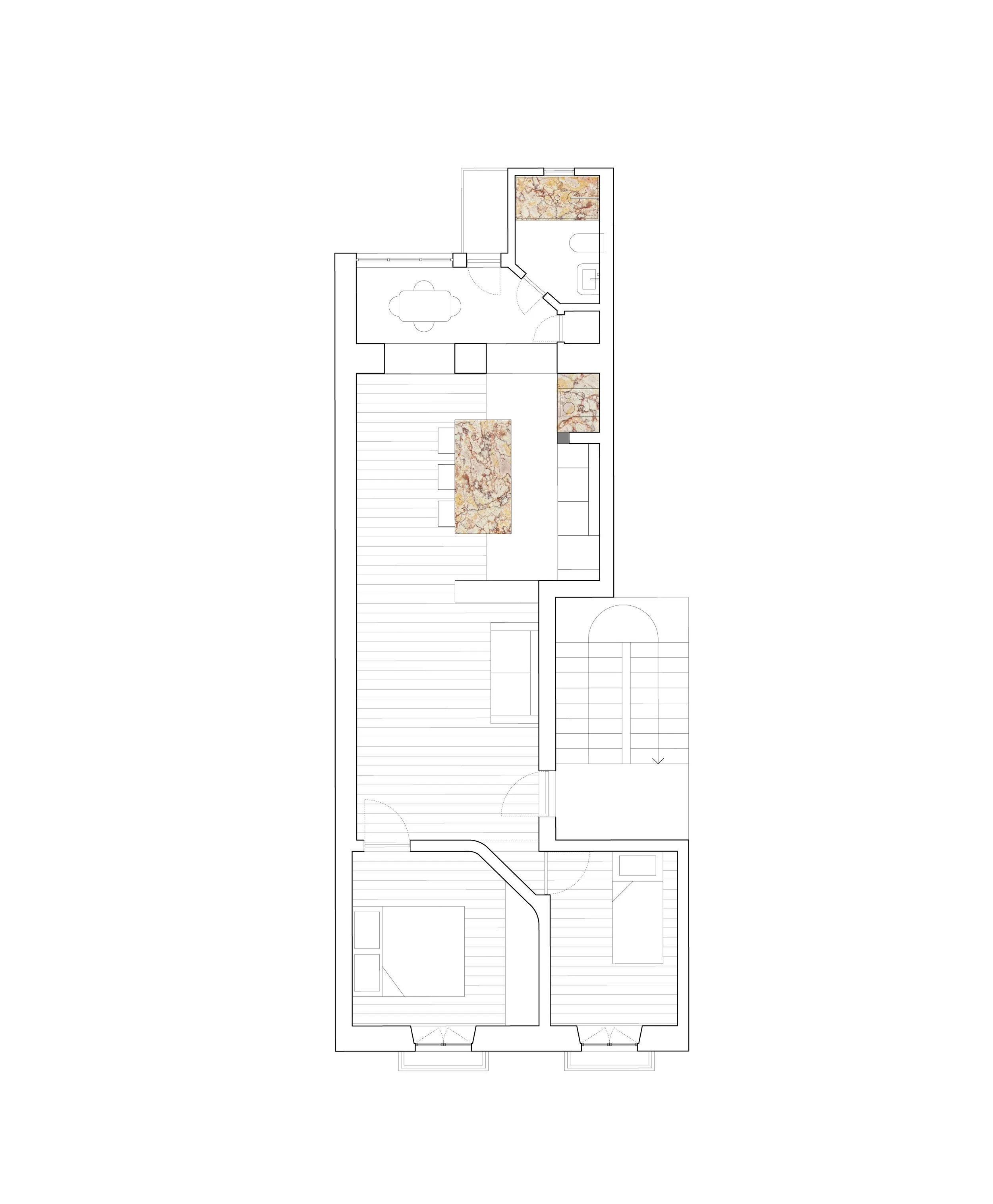
The existing 70-square-meter apartment presented a highly fragmented layout, with four small rooms, including an interior space with no natural light. One of the rooms was accessed directly from the communal staircase, reflecting a mid-20th-century domestic typology in which professional and domestic life often coexisted within the home. While outdated by contemporary standards, this configuration offered insight into historical ways of living and informed the renovation approach.

The primary challenge was to adapt this fragmented layout to contemporary living standards while taking full advantage of the apartment’s exceptional views. The client brief called for two bedrooms, an open-plan kitchen, living and dining area, and one bathroom, all within a constrained budget.

The design strategy centered on opening up the apartment while maintaining its architectural identity. Most existing partitions were removed to create a continuous social space oriented toward the views. This intervention required structural reinforcement, which was discreetly integrated into a technical false ceiling, made possible by the generous original ceiling height. The new layout clearly distinguishes between social and private areas, improving spatial flow and functionality.

Lighting was conceived as an integral architectural element rather than an applied layer. Indirect lighting was integrated into custom ceiling alcoves, minimizing visible fixtures and creating soft, ambient atmospheres throughout the space.

Material choices were guided by a philosophy of reuse and continuity. The original wooden floors were carefully restored, reinforcing warmth and authenticity. Portuguese natural stone, previously used in the kitchen chimney, was preserved and extended into the kitchen and bathroom wet areas. Where original finishes were unrecoverable, a seamless microcement surface was introduced, reducing material transitions, eliminating joints, and enhancing the perception of space.

The renovation results in a calm, open apartment that reflects contemporary ways of living while maintaining a strong connection to its historical context. By working with the existing structure and materials, the project demonstrates how thoughtful renovation can contribute to more sustainable and enduring urban housing.

Lighting was conceived as an integral architectural element rather than an applied layer. Indirect lighting was integrated into custom ceiling alcoves, minimizing visible fixtures and creating soft, ambient atmospheres throughout the space.

Material choices were guided by a philosophy of reuse and continuity. The original wooden floors were carefully restored, reinforcing warmth and authenticity. Portuguese natural stone, previously used in the kitchen chimney, was preserved and extended into the kitchen and bathroom wet areas. Where original finishes were unrecoverable, a seamless microcement surface was introduced, reducing material transitions, eliminating joints, and enhancing the perception of space.

The renovation results in a calm, open apartment that reflects contemporary ways of living while maintaining a strong connection to its historical context. By working with the existing structure and materials, the project demonstrates how thoughtful renovation can contribute to more sustainable and enduring urban housing.

Next
Next

nowhere